Камеры сборные одностороннего обслуживания серии КСО 298М
Камеры сборные одностороннего обслуживания (КСО) серии 298м (модернизированные)
Камеры сборные одностороннего обслуживания серии КСО 298 предназначены для комплектования распределительных устройств (РУ) напряжением 6 или 10 кВ трехфазного переменного тока частотой 50 Гц в сетях с изолированной или заземленной через дугогасящий реактор или резистор нейтралью. Камеры и ячейки предназначены для размещения внутри зданий или в модульных блочных конструкциях.
Ячейки КСО 298м представляют собой серию модульных камер в металлических корпусах одностороннего обслуживания, в которых контактная система разъединителей и выключателей нагрузки расположена во внутреннем объеме корпуса. В ячейках устанавливаются также измерительные трансформаторы тока, измерительные трансформаторы напряжения, трансформаторы собственных нужд, высоковольтные конденсаторы для компенсации реактивной мощности. Реле защиты, управления, сигнализации, приборы учета и измерения расположены как с фасадной стороны, так и внутри камеры КСО. Рукоятки приводов и аппаратов управления расположены с фасадной стороны.
Ячейки КСО 298м 6-10 кВ применяются на вторичном уровне распределения электроэнергии. Ячейки используются сетевыми компаниями, промышленными предприятиями и другими предприятиями инфраструктуры.
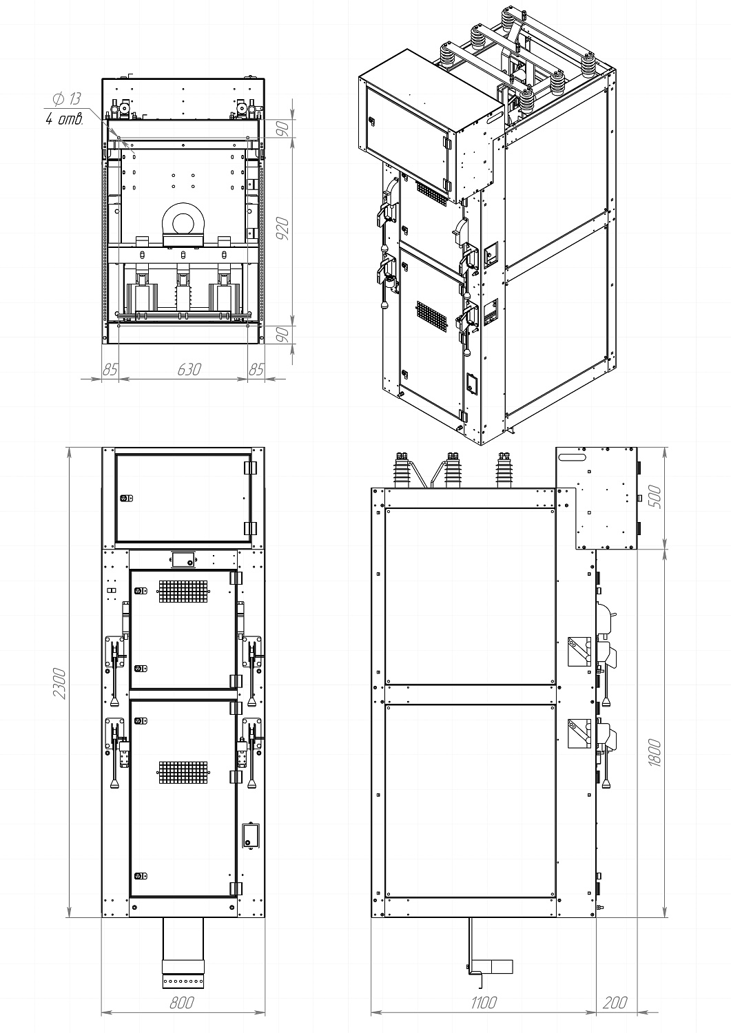
КСО 298м поставляются отдельными шкафами, состав которых определяется конкретным заказом в соответствии с установленной формой опросного листа.
КСО 298м не предназначены для работы:
- в среде, подвергающейся действию газов, испарений и химических отложений, разрушающих изоляцию и металл, в среде, подвергающейся усиленному загрязнению;
- в устройствах или установках специального назначения, например, электропечных установках, экскаваторных, корабельных и судовых распределительных устройствах и т.п.;
- в среде, опасной в отношении пожара или взрыва.
Конструкция КСО 298 полностью соответствует требованиям ПУЭ (7 издание), ГОСТ 1516.3-96, ГОСТ 12.2.007.4-75.
Конструктивные особенности КСО 298м
Ячейки КСО 298м – это модернизированный вариант ячеек КСО 298. Главной особенностью обновленного проекта ячеек является их большая компактность, за счет чего стало возможным снижение общих габаритов ячеек. Компактность достигается исключительно за счет оптимизации расположения оборудования и цепей, без ухудшения эксплуатационных характеристик изделия.
Корпус КСО 298м защищён от коррозии на весь срок службы. Детали корпуса изготовлены из стального 1,5 - 2,0 миллиметрового листа, оцинкованного горячим методом. Узлы механизмов оцинкованы гальваническим методом. Элементы фасада покрыты порошковой полимерной краской с повышенной адгезией к металлу. Корпус собран на резьбовых и заклепочных соединениях без применения сварки. Надежность и долговечность конструкции достигается за счет металлического корпуса из оцинкованной стали, покрытого порошковой краской с повышенной адгезией к металлу. Поперечное относительно сборных шин расположение коммутационных аппаратов позволяет добиться компактности устройства.
На фасадной стороне расположены органы управления аппаратами, приборы управления, учета, сигнализации и измерения. Наличие тех или иных элементов сигнализации и управления зависит от того, какое оборудование установлено в шкафу и какие защиты для него необходимы. Малые габариты по фронту способствуют эффективному использованию внутренней площади помещения при новом строительстве или реконструкции существующего РУ. Компактные габариты корпуса и выключателя, а также воздушные промежутки, используемые в качестве изолятора, обеспечивают удобный доступ к размещенному внутри оборудованию через двери. В листе двери предусмотрены смотровые окна для обзора встроенной аппаратуры. Предусмотрено освещение внутренностей шкафа. Возможна установка автоматической системы обогрева внутреннего пространства шкафа. Стандартные габариты ячеек, как и типовые схемы цепей, по желанию Заказчика, могут быть изменены.
Ошиновка
Комплектные распределительные устройства, собранные из камер КСО, комплектуются ошиновкой и торцевыми панелями, а при двухрядной установке камер – шинным мостом. Сборные шины выполняются шинами из меди или из алюминия, и крепятся на изоляторах. Требуемое сечение шин должно быть указано в опросном листе при заказе распределительного устройства. При изготовлении распределительного устройства двухрядного исполнения совместно с панелями может поставляться шинный мост. Необходимость его поставки должна быть оговорена в опросном листе с указанием длины и других параметров подключения.
Камеры и ячейки КСО, исходя из требований Заказчика, могут включать в себя:
- высоковольтный вакуумный выключатель нагрузки;
- трехполюсные разъединители, имеющие заземляющие ножи и запираемый привод;
- трансформатор собственных нужд, измерительные трансформаторы;
- систему сборных неизолированных шин;
- предохранители;
- разрядники (линейные и шинные);
- конденсаторы статические;
- систему защиты и автоматики;
- счетчик электроэнергии;
- источник бесперебойного питания цепей привода выключателя;
- шинные мосты для соединения ячеек при их двурядном размещении;
- систему телеметрии и удаленного управления коммутационными аппаратами;
- монтажные и эксплуатационные принадлежности.
КСО 298 оснащается многоуровневой системой защиты оборудования, система блокировок препятствует выполнению ошибочных действий эксплуатирующего персонала.
Преимущества КСО
КСО компактны, удобны в управлении, а самое главное надежны и безотказны в процессе эксплуатации. Безусловно, перечисленные преимущества достигаются только при соблюдении всех требований и правил по монтажу, наладке и дальнейшей эксплуатации.
Еще одно неоспоримое преимущество КСО - разделение ячейки перегородками на несколько отсеков. Перегородки разделяют друг от друга отсеки сборных шин высокого напряжения, электрических аппаратов, цепей вторичной коммутации, устройств управления и защиты.
Условия эксплуатации
КСО 298М 6-10 кВ предназначено для установки внутри помещений при следующих условиях окружающей среды:
высота над уровнем моря – до 1000 м;
верхнее рабочее значение температуры окружающего воздуха – не выше +40 °С;
нижнее рабочее значение температуры окружающего воздуха – не ниже –25 °С;
относительная влажность воздуха – не более 80% при температуре +15 °С.
Тип атмосферы – II по ГОСТ 15150-69.
Условное обозначение

Пример условного обозначения – КСО-298М ‑10/1000‑105 У3:
номинальное напряжение 10 кВ,
номинальный ток главных цепей 1000 А,
схема главных цепей 105 (ввод / отходящая линия).
К комплекту ячейки КСО прикладывается следующая документация:
- руководство по эксплуатации, руководство по эксплуатации на основные комплектующие изделия, на которые предусмотрена предприятием-изготовителем поставка этих документов комплектно с изделиями;
- электрические схемы принципиальные;
- паспорт на комплектующие, входящих в заказ;
- сертификаты соответствия на КСО и комплектующие.
